Пластиковые распределительные щиты ЩРн-П EKF Basic
Навесные щиты этой серии – недорогие изделия, идеально подходящие для бюджетных проектов. Выполнены из ABS-пластика. Предназначены для эксплуатации в зданиях гражданского назначения и на инфраструктурных объектах. Вмещают в себя до 12 модулей.
Одно из основных преимуществ пластиковых боксов Basic – возможность открывать дверь вправо или влево (для смены позиции необходимо лишь перевернуть реверсивную лицевую часть)
Немаловажно и то, что дверца может распахиваться на 180 °
В комплектацию щитов, кроме DIN-рейки, входят две шины, выполненные из латуни.
Распределительные пластиковые щиты ЩРн-П EKF PROxima «под дерево»
Эта линейка включает в себя модели в двух цветовых решениях: «светлое дерево» и «дерево темного цвета». Такой внешний вид определяет сферу применения щитов — коттеджи, дачные дома и любые другие объекты, где есть помещения с интерьером под дерево. Отметим, что они сочетаются с внешним видом пластиковых кабельных каналов EKF, имитирующих структуру древесины.
Пластиковые модульные корпуса КМПн EKF PROxima
К семейству устройств серии КМПн относятся компактные навесные боксы, в которых можно установить 2 или 4 модульных аппарата. Выпускаются в двух исполнениях — с крышкой, открывающейся вертикально, и без крышки. Комплектуются DIN-рейкой. Устанавливаются в офисных, жилых и подсобных помещениях.
Пластиковые распределительные щиты ЩРн-ПГ IP65 EKF PROxima
Отличительная особенность электрощитов ЩРн-ПГ — высокий уровень защиты от проникновения пыли и влаги (IP65). Благодаря этому их можно эксплуатировать на складах, в помещениях, где осуществляется производственная деятельность, в подвалах, гаражах, автомойках, в общем, везде, где высок уровень пыли и влаги.
В ряду других достоинств щитов: корпус из прочного пластика (ABS), наличие вертикальной дверцы и разметки под кабельные вводы, комплектация шинами N и PE, возможность опломбировки.
Компания EKF выпускает широкий спектр низковольтного оборудования, в каталоге которого можно найти любое устройство, необходимое для использования в системах ввода, учета и распределения энергии, автоматизации электроснабжения, управления технологическими процессами – будь то силовой или модульный выключатель, преобразователь частоты или пост кнопочный пкуучет, воздушный выключатель или электросчетчик, выключатель нагрузки или кабельный канал, шинопровод или клеммная колодка, распределительный шкаф на 4000 А или электрощиток на 125 А.
7 Список нормативно-технической документации
-ГОСТ Р 51321.1-2007-Устройства комплектные низковольтные распределения и управления. Часть 1. Устройства, испытанные полностью или частично. Общие технические требования и методы испытаний;
-ГОСТ 12.2.007.0-75-Изделия электротехнические. Общие требования безопасности;
-ГОСТ 2.701-84-Правила выполнения схем;
-ГОСТ 2.710-81-Обозначения буквенно-цифровые в электрических схемах;
-ГОСТ 13109-97-Электрическая энергия. Совместимость технических средств электромагнитная. Нормы качества электрической энергии в системах электроснабжения общего назначения;
-ГОСТ 21130-75-Изделия электротехнические. Зажимы заземляющие и знаки заземления. Конструкция и размеры;
-ГОСТ Р 51317.2.4-2000 (МЭК 61000-2-4-94)-Совместимость технических средств электромагнитная. Электромагнитная обстановка. Уровни электромагнитной совместимости для низкочастотных кондуктивных помех в системах электроснабжения промышленных предприятий»;
-СО 34.35.311-2004-Методические указания по определению электромагнитной обстановки и совместимости на электрических станциях и подстанциях»;
-N13562тм-т1-Требования к разработке общего вида и рядов зажимов НКУ. Панели (блоки) открытого исполнения»;
-РД 16.560-90 -Устройства комплектные низковольтные. Требования к проектной документации, передаваемой изготовителю;
-ГОСТ 14254-96-Межгосударственный стандарт. Степени защиты, обеспечиваемые оболочками;
-ГОСТ 28668-90 (МЭК 439-1-85) -Низковольтные комплектные устройства распределения и управления;
-ГОСТ 13109-97 -Межгосударственный стандарт. Электрическая энергия. Совместимость технических средств электромагнитная нормы качества электрической энергии в системах электроснабжения общего назначения;
-ГОСТ Р 51317.6.5–2006 -Устойчивость к электромагнитным помехам технических средств, применяемых на электростанциях и подстанциях;
-Правила Устройства Электроустановок (ПУЭ)., 2007г;
-ГОСТ 23216-78 -Межгосударственный стандарт. Изделия электротехнические. Хранение, транспортирование, временная противокоррозионная защита, упаковка. Общие требования;
-СТО 56947007-29.240.10.028-2009 -Нормы технологического проектирования подстанций переменного тока с высшим напряжением 35-750 кВ (НТП ПС);
-Правила технической эксплуатации электрических станций и сетей Российской Федерации, СПО ОРГРЭС, М., 2003.
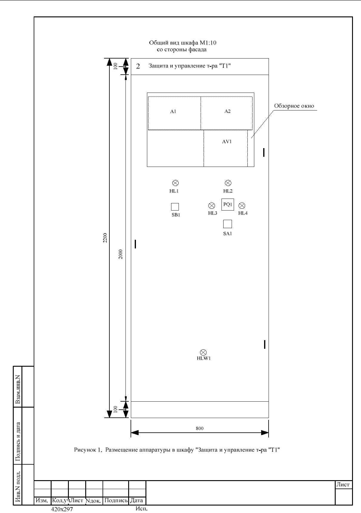
Приложение 1
Пример общего вида фасада шкафа Приложение 2 Пример положения ключей МП защит и оперативных ключей


1) Положение ключа при 2) Положение ключа при выведенной функции введенной функции
Положение ключей управления режимами работы устройств
РЗА и оперативных переключателей, расположенных на
шкафах:
- Рукоятка расположена горизонтально, указатель направлен влево – функция выведена из работы.
- Рукоятка повернута на 90 градусов по часовой стрелке,
располагается вертикально, указатель направлен вверх –
функция введена в работу.
Основные критерии выбора
Для того чтобы правильно подобрать вводной автомат (ВА) нужно знать на какие характеристики стоит обратить внимание при покупке
Номинальный ток
Это самая важная характеристика при выборе вводного защитного устройства. Это свойство прибора обозначает максимальный ток, при превышении которого произойдёт отключение питания, за определённое время.
Вне зависимости от того, является автомат вводным или обеспечивающим защиту конкретной линии (провода), его расчёт производится по максимальной мощности потребителей электроэнергии. Номинал вводного устройства выбирают, рассчитывая мощность (или ток) всех потребителей при одновременном включении в сеть, для большей безопасности уменьшая полученное число на 10-15%, округляя в сторону меньшего значения.
Количество полюсов
Существуют автоматы с разным количеством полюсов. Однополюсные применяют для защиты отдельных линий. Функции вводного автомата обычно выполняют двух, трех или четырехполюсные автоматические выключатели.
Важное правило, которое поможет выбрать количество полюсов заключается в том, что для однофазных сетей применяют двухполюсные автоматы, а для трехфазных – трех или четырехполюсник. Двухполюсные выключатели выполнены с общим для обоих полюсов рычагом и механизмом отключения. То есть при аварийной ситуации происходит отключение сразу двух полюсов (обычно к одной клемме подключают фазу, ко второй — ноль)
Такие приборы часто применяются в однофазных сетях жилых помещений многоквартирных домов
То есть при аварийной ситуации происходит отключение сразу двух полюсов (обычно к одной клемме подключают фазу, ко второй — ноль). Такие приборы часто применяются в однофазных сетях жилых помещений многоквартирных домов
Двухполюсные выключатели выполнены с общим для обоих полюсов рычагом и механизмом отключения. То есть при аварийной ситуации происходит отключение сразу двух полюсов (обычно к одной клемме подключают фазу, ко второй — ноль). Такие приборы часто применяются в однофазных сетях жилых помещений многоквартирных домов.
Трехполюсный (или четырёхполюсный) автомат используют при вводе электрического кабеля в частные дома при трехфазной сети, а также в промышленных зданиях и даже в некоторых квартирах. К каждой клемме прибора подключают по фазе (и ноль, если это четырехполюсник). Он также, как и двухполюсник имеет один общий рычаг для всех полюсов и при перегрузке отключает питание по всем фазам.
Времятоковая характеристика
Характеризует ток мгновенного расцепления и чаще всего обозначается на приборе латинскими буквами B, C или D. От времятоковой характеристики зависит чувствительность защитного устройства к пусковым токам электроприборов и оборудования. Для вводного автоматического выключателя это свойство является важным, так как оно влияет на срабатывание нижестоящих групп автоматов.
Чаще всего используют следующие типы автоматов по времятоковой характеристике:
- B – при значении тока в 3 — 5 раз выше номинального сработает электромагнитный выключатель устройства и оно мгновенно отключится;
- C – электромагнитный расцепитель отключит устройство при превышении тока в 5-10 раз;
- D – сработает при превышении тока в 10-20 раз от номинального.
Для вводного автомата в жилые помещения применяют устройства с времятоковой характеристикой типа C, так как большинство приборов в домашних условия не имеют больших пусковых токов и не будут оказывать негативного влияния на электрическую сеть квартиры или дома.
Характеристики срабатывания каждого устройства указываются в паспорте и инструкции завода-изготовителя автоматического выключателя.
Способ крепления
Все автоматические выключатели имеют стандартное крепление и помещаются на дин-рейку в электрощите. Это же правило относится и к вводным автоматам. Исключение составляют специальные устройства для промышленных целей, которые могут закрепляться без дин-рейки на специальные крепления.
Бренд выключателя
При выборе вводного защитного выключателя, также как и в случае выбора любых электротехнических устройств важно ориентироваться на известного производителя, заслужившего признание. Такие производители дают гарантию качества на свои устройства и изготавливают надежные, долговечные и безопасные автоматические выключатели. К самым популярным на сегодняшний момент относятся автоматы следующих производителей:
К самым популярным на сегодняшний момент относятся автоматы следующих производителей:
Электрические щиты, шкафы и боксы
Щит электрический — общее наименование электрощитового оборудования, которое используется в бытовых и промышленных целях. Распределительный шкаф (или бокс) выполняет роль защитного и распределяющего устройства в одно и трёхфазных сетях. Использование шкафного оборудования бережёт людей от поражения током и предохраняет установленные приборы от повреждения как внутри зданий и помещений, так и на улице.
Выпускаются металлические и пластиковые щиты, которые применяются в качестве:
- главных электрощитов;
- вводных электрических щитков;
- вводно-распределительных шкафов;
- коммутационных узлов;
- монтажных боксов для электрических автоматов.
Виды оборудования по ГОСТ
Согласно законодательно принятым документам, и маленькие боксы на 2 модуля, и большие распределительные шкафы-станции относятся к распределительным щиткам, отвечающим за подключение электрических групп. Со стандартами можно ознакомиться в редакции ГОСТ 32395-2013.
Щитки делятся на квартирные боксы и этажные – по месту установки. Следующее деление – на распределительные и учетно-распределительные. Вторые отличаются установкой счетчика.
Таким образом, можно выделить две большие категории:
- квартирные – групповые и учетно-групповые;
- этажные – распределительные, учетно-распределительные, учетно-распределительно-групповые.
По способу установки все перечисленные виды бывают настенными или встраиваемыми в специально подготовленную нишу.
Если настенный бокс просто закрепляется дюбелями на стене или перегородке, то для встроенного ящика необходимо вырезать или выдолбить нишу определенной глубины
Распределительные коробки защищены от поражения электротоком. По этому показателю они могут относиться к I или II классу.
Некоторые этажные изделия оснащены специальными отсеками для слаботочного оборудования. Квартирные боксы бывают с аппаратом на вводе и без него, рассчитаны на однофазную или трехфазную цепь.
Ручное управление
Переход на ручное управление освещением осуществляется в следующих случаях:
- Для ремонта сети в дневное время.
- Для активации освещения при вышедшем из строя реле управления.
- Включение освещения в ситуациях, когда реле управления не срабатывает по заданным условиям.
На дверце или боковой поверхности осветительного щита размещаются переключатели, благодаря которым осуществляется переход на ручное управление. Выполнить ручное включение можно несколькими способами:
- Выключателем внутренней либо наружной установки.
- Переводом ключа ручного управления в одно из положений.
- Кнопочной станцией управления — промышленным вариантом.
Работа реле управления зависит от датчиков, располагающихся в максимально удобных местах. Нередко под щитами и осветительными опорами размещают фотореле. К схеме кабелями подключаются датчики при помощи клеммников, установленных на DIN-рейке.
Если нагрузка, подключенная к щитку наружного освещения, превышает максимально допустимую, то ее подключение осуществляется через пускатель. В таком случае реле отвечает за включение пускателя, который, в свою очередь, включает светильники.
Требования к установке и прибору

Цель монтажа электрического распредщита – обеспечение электробезопасности, поэтому при его подборе и установке нужно обратить внимание на требования ГОСТ 51778-2001 и ПУЭ:
- к изделию обязательно прилагается документы с подробным описанием, указанием номинального тока;
- на корпус наносится знак электробезопасности с пределом напряжения;
- качественный щиток выполняется из негорючих материалов – термостойкого пластика или металла с полимерным покрытием;
- на кабели для подключения бытовой техники обязательно наносится маркировка;
- обозначение шин, клеммных колодок заземления и нейтрали осуществляется согласно нормам ПУЭ;
- дверки и корпус электрического щитка обязательно заземляются;
- на дверках есть специальные места для установки пломб;
- для защиты от детского доступа на щиток ставится замок.
Установка электрощитового оборудования осуществляется около входной двери квартиры в специальной нише. При невозможности ее обустройства на стену крепят внешний короб или штробят стену. Прибор располагают на высоте 1,5 м от линии пола. Ряд верхних автоматов должен находится на уровне глаз. В деревянных строениях предпочтительны навесные модели с хорошей пыле- и влагостойкостью.
№7. Количество модулей в распределительном щитке
Принципиальное отличие всех щитков – количество модулей. Некоторые ошибочно считают, что их число должно быть кратным 12, но это не всегда так: используются щитки, рассчитанные на 16 и 18 модулей, есть даже компактные модели, в которых число модулей не превышает 10.
Чтобы определиться с тем, какое количество модулей необходимо в вашем случае, для начала лучше всего составить схему электропроводки с указанием всех точек потребления, сюда входят розетки, осветительные приборы, отдельно выделяют электроприборы, которые потребляют много энергии (кондиционер, стиральная машина, бойлер). Далее определяются группы. Для осветительной проводки используют автоматические выключатели на ток 10 А, для розеточной – 16 А. В качестве коммутационно-защитных устройств можно использовать не только автоматические выключатели, но и УЗО, или же заменить эти два устройства на дифференциальный автомат. Количество УЗО, автоматов и дифавтоматов необходимо знать для правильного выбора количество модулей. Также стоит учитывать наличие счетчика и его размеры.
Ширина одного модуля – 18 мм, она равняется ширине однополюсного выключателя. Для подключения двухполюсного автомата понадобиться 2 модуля, трехфазного автоматического выключателя – 3, однофазного УЗО – 3, трехфазного УЗО – 5, электросчетчика – от 6 до 8 в зависимости от его размеров (ширину прибора можно просто поделить на 18 мм).
Для квартиры в ряде случаев достаточно щитка на 12-16 модулей. Если счетчик будет располагаться в щитке, то придется брать устройство на 16-24 модуля. Для большого частного дома может потребоваться щиток на более чем 24 модуля. В больших коттеджах иногда ставят два щитка, так как из-за большой протяженности проводки один в случае аварии не всегда может оперативно сработать, а может и не сработать вовсе.
Кроме того, в щитке могут располагаться устройства защиты от перенапряжений, фотореле или пускатели автоматического включения света. Если нет уверенности в том, что вы сможете сделать правильный выбор распределительного щитка, то лучше доверьтесь специалистам. Помощь, скорее всего, понадобится и при сборке, установке щита и подключении к нему всех групп электроприборов – с электричеством лучше не шутить.
Характеристики
В зависимости от типа уличного шкафа для оборудования может меняться его внешний вид. Открытые модели не имеют дверок, а закрытые изделия укомплектовываются одной или двумя дверцами. Дверка оснащается замком со специальной вставкой, выступающей надежной гарантией водонепроницаемости конструкции. В открытом состоянии она отклоняется на угол не меньший 120°.
Чем выше класс защиты IP, характерный конкретному шкафу, тем более комфортные условия функционирования обеспечиваются электроагрегатам внутри него. Эта характеристика определяет степень изоляции агрегатов от негативных факторов: пыли, ультрафиолета, грязи. Более высокому классу защиты соответствует большая цифра после букв IP. К примеру, модель IP20 – это квартирный вариант, то есть, подходит для монтажа в городской квартире, так как не обладает высокой степенью защиты от повышенной влажности воздуха. В тоже время, IP 21 – 2З устанавливают в закрытых помещениях без отопления, а конструкции с классом защиты IP44 можно монтировать на открытом воздухе, но под козырьком. Уличные конструкции должны иметь класс защиты IP54 и 66.
| Характеристики | Исполнение |
| Стойкость к высоким/низким температурам | Способны выдержать без последствий температуру окружающего воздуха в пределах от -40 до +400С. |
| Масса | От 2 и не более 20 кг. |
| Толщина стенок | От 0.5 до 0,8 мм. |
| Возможность управления | Ручное, электронное. |
| Количество устанавливаемых автоматов | От 1 до 54 и более. |
| Рекомендуемая высота установки | Для щитов по ПУЭ — на уровне не выше 2,2 м, но не ниже 0,4 м. от уровня пола. Для ВРУ щитов для приборов учёта электроэнергии — на уровне 1,7 м. |
SE Электроника
- Микрофоны
- Большая диафрагма
- Малая диафрагма
- Лента
- Динамический
- Беспроводной
- Прямой эфир
- X1 серии
- Серия подписей Руперта Неве
- Reflexion Filters
- RF SPACE
- РФ ПРО
- RF-X
- guitaRF
- Комплект X1 S Studio
- Аксессуары
- DM1 ДИНАМИТ
- V ЗАЖИМ
- V КОРПУС
- Ударные установки
- Поп-фильтры
- Обновление кронштейна RF Pro
- Блог
- История sE
- sE Художники
- Приложения
- Вокал
- Живой вокал
- Акустические гитары
- Шкафы для электрогитары
- Шкафы для бас-гитары
- Оркестровый + Струнные
- Фортепиано
- Деревянные духовые
- Латунь
- Перкуссия
- Бас-барабан
- Барабан
- Тарелки + оверхэды
- Томы
- Комната
- Устаревшие продукты
- Где купить
- Связаться с нами
- Гарантия
- Постановка на учет
- часто задаваемые вопросы
- Контактная поддержка
- Защита & Условия
- Микрофоны
- Большая диафрагма
- Малая диафрагма
- Лента
- Динамический
- Беспроводной
- Прямой эфир
- X1 серии
- Серия подписей Руперта Неве
- Reflexion Filters
- RF SPACE
- РФ ПРО
- RF-X
- guitaRF
- Комплект X1 S Studio
- Аксессуары
- DM1 ДИНАМИТ
- V ЗАЖИМ
- V КОРПУС
- Ударные установки
- Поп-фильтры
- Обновление кронштейна RF Pro
- Блог
- История sE
- sE Художники
- Приложения
- Вокал
- Живой вокал
- Акустические гитары
- Шкафы для электрогитары
- Шкафы для бас-гитары
- Оркестровый + Струнные
- Фортепиано
- Деревянные духовые
- Латунь
- Перкуссия
- Бас-барабан
- Барабан
- Тарелки + оверхэды
- Томы
- Комната
- Устаревшие продукты
- Где купить
- Связаться с нами
- Гарантия
- Постановка на учет
- часто задаваемые вопросы
- Контактная поддержка
- Защита & Условия
Пример электрощита в собранном виде
В качестве примера электрощита в сборе можно рассмотреть типичную разводку для квартиры. На входе в бокс установлен вводной диф автомат QF на 30 А. С него белый (фазный) и синий (нулевой) провода поступают на однофазный счетчик электроэнергии Меркурий 201. Оба устройства зафиксированы с помощью DIN-рейки. Синий (N) проводник со счетчика поступает на нулевую шину. А белый провод (L) на линейку групповых автоматов QF1-QF4. Впоследствии с этих автоматов будут запитаны отдельные потребители в квартире.
Щит дополнен собственной розеткой, остающейся под напряжением, даже если вся квартира обесточена. Она пригодится, например, во время ремонтных работ.
Собранный электрощит для дачи
Конструктивные особенности щита освещения
К устройству щита освещения предъявляются аналогичные требования, как и к распределительным щитам. Подведение питания осуществляется посредством автоматического рубильника, который рассчитан на нагрузку всех светотехнических приборов, подсоединенных к щиту.
Ток номинальный подбирается по суммарному значению токов подсоединенной нагрузки. Можно одновременно подсоединять пару отходящих проводов к единому автомату. В таком случае при ремонте осветительной линии будет отключаться больше устройств освещения, чем должно быть.
В защите световой электрической проводки, приборов освещения при помощи УЗО (устройства защитного отключения) нет необходимости.
Вся проектируемая заново электропроводка освещения делается трехпроводной. Для обеспечения питания светотехники применяются проводники «нуля», «фазы». Нулю соответствует жила синего цвета. Для заземления корпуса осветительных приспособлений применяется желто-зеленый проводник, который входит в состав 3-жильного кабеля. На нем нанесены символы РЕ.
Для подсоединения нулевых проводников в конструкцию ЩОВ включены две шинки:
- с маркировкой N — для подсоединения рабочих проводников;
- с маркировкой РЕ на лицевой стороне — для подсоединения защитных проводников.
В том случае, когда корпуса светотехнического оборудования сделаны из материалов, которые не проводят электрический ток (пластик), а отражатель светового потока выполнен из стали, нет необходимости проводить заземление отражателя. Но это не означает, что для обеспечения питания светотехники можно взять двухжильный кабель. Только трехжильный кабель, как и для розетки, не имеющей контакта заземления. В период эксплуатации осветительное устройство (розетку), к примеру, поменяют на электротехническое оборудование другого типа, и понадобится защитный проводник.
Полезные рекомендации
Если в доме нет проблем с электричеством, то можно обойтись без заземления, но в некоторых зданиях оно обязательно.
В конце еще несколько рекомендаций от мастеров:
- Если шнур питания очень длинный, но имеет литой разъем, не стоит обрезать его. Эта деталь имеет гарантию.
- Если вилка разборная, можно ее поменять.
- Из-за повышенного тепла от прибора нельзя ставить технику рядом с раковиной и обеденным столом.
Как правильно проверить работоспособность техники
И заключительный этап установки любой печи — это проверка ее работы и первый запуск. Нужно просто подключить духовку по инструкции и убедиться, что все работает. Запускать технику нужно на полную мощность. На датчике указывают температуру и ждут, пока сгорит заводская смазка изнутри духовки. Скорее всего, пойдет дым. Не нужно бояться, это часто бывает при первом запуске. Печь готова к использованию.
Виды электрощитов
Все электрощиты подразделяются на целый ряд видов, которые отличаются по конструктивному исполнению, материалу (металл или пластик), из которого изготовлен щит, методу установки и по целевому назначению.
Главный распределительный щит (ГРЩ) — распределительный щит,который осуществляет приём и распределение электроэнергии, а также учет электроэнергии, по зданию. Состоит обычно из нескольких панелей — вводных, секционных, распределительных. Также в состав ГРЩ могут входить панели учета электроэнергии, АВР, панели ППУ.
Вводно-распределительное устройство (ВРУ) — имеет похожее назначение с ГРЩ. Также обеспечивает прием и распределение электроэнергии в здание.
Автоматический ввод резерва (АВР) — обеспечивает питание потребителей от одного из нескольких источников питания (основной, резервный и т.д.) и выполняет автоматическое переключение в случае нарушения питания на резервный источник. В качестве основного ввода используются ввода от трансформаторных подстанций, в качестве резервных могут применяться либо ввод от ТП, либо от генератора. АВР могут выполняться как в виде отдельных устройств, так и в составе ГРЩ.
Распределительный щит — предназначены для приема и распределения электроэнергии, нечастого включения и отключения линий групповых цепей, а также для их защиты при перегрузках и коротких замыканиях. К распределительным устройствам относятся, в том числе:
- Щит этажный — обеспечивает прием электроэнергии от ГРЩ, ВРУ и ее передачу конечным потребителям. Также в состав этажного электрощита входит учет расхода электроэнергии жильцами дома.
- Щит квартирный — предназначен для распределения электрической энергии, защиты отходящих линий и потребителей электроэнергии при коротких замыканиях и перегрузках, защиты людей от поражения электрическим током и защиты от пожара при неисправности электропроводки в однофазных сетях.
Щит освещения — применяются для управления осветительными сетями производственных зданий, сооружений, территорий объектов с различными источниками света.
Шкаф автоматики — применяются для приема и распределения электроэнергии, управления промышленными автоматизированными системами, контроля технологических параметров и сигналов, аварийной защиты, диспетчеризации и т.д.
Щит учета электроэнергии — используются для приема, распределения и коммерческого учета электроэнергии и защиты отходящих линий от перегрузок и токов короткого замыкания.
Помимо вышеперечисленных, существует еще целый ряд других видов — УКРМ, ШБП, ЩСН, пульты управления.
Щиток для автоматов электрических
Щиток электрический под счетчик и автоматы — конструкция и особенности выбора
Электротехнический шкаф защищает электрооборудование от внешнего воздействия (особенно на улице) от пыли, влаги, ветра.
В нём легко и компактно можно разместить элементы проводки, счётчик и предохранители.
Немаловажно и то, что щиток выполняет эстетическую функцию – он может быть выполнен в виде аккуратного ящика с открывающейся крышкой, или стеклянной дверцы, «утопленной» в стену. Оборудование не портит вид и недоступно детям
Чтобы сэкономить на услугах электриков, можно собрать и установить щиток электрический под счётчик и автоматы своими руками. Как это сделать, будет подробно рассказано в статье.
Электрический ящик для автоматов: выбор
Есть множество характеристик, между которыми выбирают подходящий для себя электротехнический шкаф и коробку для электрических автоматов. Для дома и квартиры – это обычно небольшой компактный бокс для электросчетчика (размер будет зависеть от того, какие элементы планируется помещать в него).
По способу монтажа он может быть:
- Навесной или настенный;
- Напольный (чаще применяются для крупных объектов).
- Встроенный (скрытый).
- Внешний (накладной, открытый).
Внешний проще крепить, его навешивают на саморезы.
Чаще такой шкаф используется при открытой проводке. Но можно и подвести скрытую, с задней стороны щитка.
Преимущество встроенных моделей в том, что они смотрятся эстетично, не выпирают, скрывают содержимое. Трудность в том, что придётся подготовить нишу в стене и проштробить каналы для прокладки кабеля.
По количеству автоматов, которые можно в нём разместить (от 2 штук, но может быть 12, 36, 54 и больше модулей). Большинство счётчиков сегодня подключают через несколько автоматов. Это, во-первых, удобно (например, если отдельно запитать свет, можно будет работать с ним, не обесточивая розетки).
Во-вторых, большинство сегодняшней энергоёмкой техники требует отдельного автомата по правилам эксплуатации. В-третьих, это даёт возможность экономить. Так, например, на маломощное оборудование можно выводить проводку меньшего сечения (которая стоит гораздо дешевле), а не использовать толстый кабель по всему дому.
Защитный ящик для счетчика
Привычные металлические ящики для электросчетчика чаще бывают громоздкими и уступают лёгким полиэстеровым, которые обладают высокой пожарной защитой и часто делаются с прозрачной дверцей.
Класс защиты IP показывает степень изоляции приборов от влаги и пыли. Чем больше цифра после литер IP,- тем выше класс защиты. Например:
IP20 подойдёт для установки в квартире – крупные частицы пыли проникать не будут, а вот влагозащиты нет.
IP 21 – 23 можно ставить в неотапливаемом закрытом помещении, под навесом.
IP44 уже можно размещать на улице, но с дополнительной защитой, козырьком.
Самые защищённые электротехнические шкафы IP54 и 66 – их можно устанавливать на открытом воздухе, не боясь дождя и ветра
Для уличных, и шкафов, которые будут установлены в подъездах, может быть удобно, если есть окошко для снятия показаний. В такой щиток не придётся каждый раз открывать дверцу.
Конструкция щитка и элементы щитка
Коробка для счетчика электроэнергии состоит из:
корпуса;
дверцы;
дин-рейки (крепёжная планка для автоматов и счётчика);
монтажных отверстий и подготовленных полуотверстий для проводки.
В пластиковых корпусах по боковым частям есть как бы намётки для отверстий, которые можно просверлить в тех местах, которые будут наиболее удобны владельцу. Либо это могут быть выламывающиеся лючки.
Металлические щитки имеют готовые отверстия.
Если требуется, внутри боксов устанавливают ОЗУ, или дополнительную розетку и другие элементы.
Выбор оборудования для КЩ
Подбирая электроаппараты и кабель, необходимо руководствоваться двумя критериями:
- Технические параметры.
- Надежность производителя.
Если для определения технических параметров достаточно провести несколько несложных расчетов, то в выборе производителя не все так однозначно. На рынке появилось много недорогой контрафактной продукции. Помимо этого часто встречаются откровенные подделки известных брендов. Поэтому рекомендуем проверять наличие у электроаппаратов соответствующих сертификаты. Особенно это касается приборов учета. Любая компания-поставщик электроэнергии откажется подключать несертифицированный счетчик, а также прибор не прошедший поверку.
Многотарифный счетчик Меркурий 203.2Т

























































