Материалы
Прежде чем приступить к изготовлению кровати с подъемным механизмом, стоит грамотно подобрать расходные материалы. Сделать мебель можно из следующих материалов:
- ЛДСП. Этот материал занимает лидирующие позиции при изготовлении мебели. Ламинированное ДСП отличается широким выбором текстур, фактур и цветовых решений. С ним легко и приятно работать.
Он поддается обработке как ручными, так и электрическими инструментами. Сделать кровать из ЛДСП под силу даже новичку в этом деле, который ранее не сталкивался с деталировкой и сборкой мебельных предметов;
- натурального дерева. Такой вариант относится к классике. Сделать кровать из массива может только специалист в этой сфере. Так как разные типы древесины по-разному поддаются обработке. Если ранее вы не занимались изготовлением мебельных предметов, лучше начать с фанеры, ДСП или МДФ. Но, если вы приняли решение сделать ложе из массива, то такое изделие порадует вас натуральностью, гипоаллергенностью, безупречным внешним видом, длительным сроком эксплуатации;
- МДФ. Такой вариант также подойдет для новичков. МДФ имеет разные текстуры, легко поддается обработке, отличается прекрасными техническими характеристиками и вполне приемлемой и доступной ценой.
Совет: помимо пиломатериалов, при изготовлении кровати с подъемным механизмом, стоит уделить внимание фурнитуре, направляющим и самому подъемному механизму. Именно от него напрямую будет зависеть долговечность и прочность изделия
Здесь лучше не экономить на покупке мебельных составляющих, а приобрести продукцию от проверенных и хорошо себя зарекомендовавших производителей.
Правила безопасной эксплуатации
Механизмы для подъема кровати повышают практичность и функциональность мебели. При эксплуатации подобных конструкций необходимо соблюдать несколько правил безопасности:
Шкафы-кровати должны надежно фиксироваться к стене при горизонтальном подъеме
Это особенно важно при наличии пружинных механизмов.
Во время поднятия либо опускания спального места пользователь должен находиться сбоку от предмета мебели.
Кровать с пружинным и ручным механизмом в поднятом положении необходимо дополнительно укреплять подпоркой.. Разновидности оснований для кровати — характеристики, плюсы и минусы
Разновидности оснований для кровати — характеристики, плюсы и минусы
Модели с газовыми амортизаторами считаются наиболее безопасными. Спальное место надежно удерживается в горизонтальной позиции за счет полного вытягивания поршней устройства. В таком состоянии механизм не способен сжиматься самостоятельно. Некоторые производители дополняют конструкции специальными фиксаторами, которые будут полезны самым осторожным пользователям. Такие предметы обстановки неспособны резко опускаться. Даже если один из агрегатов сломается, мебель медленно займет исходное положение благодаря второму элементу.
Кровати, оснащенные подъемными механизмами, пользуются сегодня повышенным спросом. Причина популярности заключается в высокой функциональности и практичности мебели — в дополнительном отсеке удобно хранить постельные принадлежности, белье и другие габаритные вещи. Но перед тем как выбрать подходящее изделие, необходимо ознакомиться с разновидностями, типами, особенностями конструкций.
Шкафы-кровати должны надежно фиксироваться к стене
Во время использования подъемного механизма пользователь должен находиться сбоку от предмета мебели
Кровать с пружинным и ручным механизмом в поднятом положении следует дополнительно укреплять подпоркой
Что собой представляет
Газлифт для кровати — приспособление, облегчающее подъем верхней части конструкции без лишних усилий. Принцип работы этого небольшого устройства аналогичен функционированию автомобильного амортизатора. Основными составляющими изделия являются:
- Цилиндр с газом (практически всегда применяется азот). Нужно учитывать, что внутри цилиндра высокое давление, поэтому ремонтировать или разбирать его собственноручно не стоит.
- Поршень со штоком — эта деталь способствует передаче усилия, возникающего в ходе работы изделия.
- Масляный глушитель (может быть выполнен и из резины). Прокладка, основная задача которой — прекратить колебания, возникающие в ходе функционирования газлифта.
- Фиксаторы. Пластины из прочной стали, при помощи которых газлифт фиксируется к корпусу кровати.
Многие фирмы оснащают свою мебель газлифтами не только для того, чтобы владельцу было удобно хранить и искать разные вещи. Постели, дополненные подобным устройством, обеспечивают анатомически правильное положение позвоночника во время отдыха. Также у них нет стыков и швов, которые часто вызывают дискомфорт. К другим преимуществам изделия можно отнести:
- Простоту конструкции.
- Поскольку подъемник собран всего из нескольких элементов и работает за счет давления, он имеет доступную стоимость.
- Легкий монтаж.
- Надежность и долговечность — каждое изделие рассчитано примерно на 20 000 подъемов.
- Отсутствие шума во время работы.
- Устройство полностью безопасно для здоровья.
Варианты размещения и оформления полок вокруг кровати, способы монтажа Что касается слабых сторон кроватей, оснащенных газлифтом, то их всего 2. Если приобрести постель с пружинами в верхнем блоке, для поднятия элемента потребуется прикладывать много усилий. Второй недостаток — газлифты, выдерживающие большие нагрузки, стоят дорого.
Пошаговая инструкция
Работу разбил на несколько этапов:
- подготовка и сборка деталей из МДФ,
- монтаж вкладного каркаса под матрас,
- изготовление подъёмных механизмов,
- сборка каркаса кровати с подъёмным механизмом своими руками.
Подготовка и сборка деталей из МДФ
- На листе бумаги нарисовал чертежи кровати с подъёмным механизмом.

- На листе МДФ карандашом с помощью рулетки и металлической линейки нанёс разметку будущих деталей корпуса.
- Лист МДФ разрезал на удобные для раскроя части.
- На верстаке закрепил струбцинами части листа МДФ.
- Электролобзиком вырезал элементы для сборки корпуса кровати 1600 х 2000 с подъёмным механизмом.
- Торцы всех деталей протёр влажной тряпкой.
- Прижимая утюгом кромочную ленту, прогладил все торцы, кроме тех, которые обращены к полу.
- Выставил изголовье (1664 × 772 мм), две боковые царги (2054 × 296 мм), заднюю стенку (1664 × 296 мм) и поперечную доску (150 × 1608 × 20 мм).
- С внешней стороны угловых соединений просверлил по 2 отверстия под конфирматы.
- Крестовой отвёрткой установил крепёж.
- Головки конфирматов закрыл пластиковыми заглушками на клее ПВА.
- Внутри 4 углов шуруповёртом установил пластмассовые уголки.
- Для обеспечения дополнительной жёсткости каркаса установил поперечную доску, соединив её с боковинами металлическими уголками на шурупах.
- Лист ДВП обрезал электролобзиком до размеров 2054 × 1664 мм.
- Собранный каркас поставил набок. По всему периметру кровати шурупами закрепил лист днища из ДВП.
- Снизу по углам каркаса и посередине царг просверлил отверстия. В них вставил ножки. Пластиковые опоры обеспечивают лёгкое передвижение мебели по полу. При влажной уборке помещения ножки исключают контакт МДФ с мокрым полом.
Монтаж вкладного каркаса под матрас
Купил вкладной каркас в разобранном виде, что удобно для перевозки его в транспорте. Следуя инструкции, собрал выдвижное основание без особого труда. Для этого понадобился гаечный ключ и отвёртка.
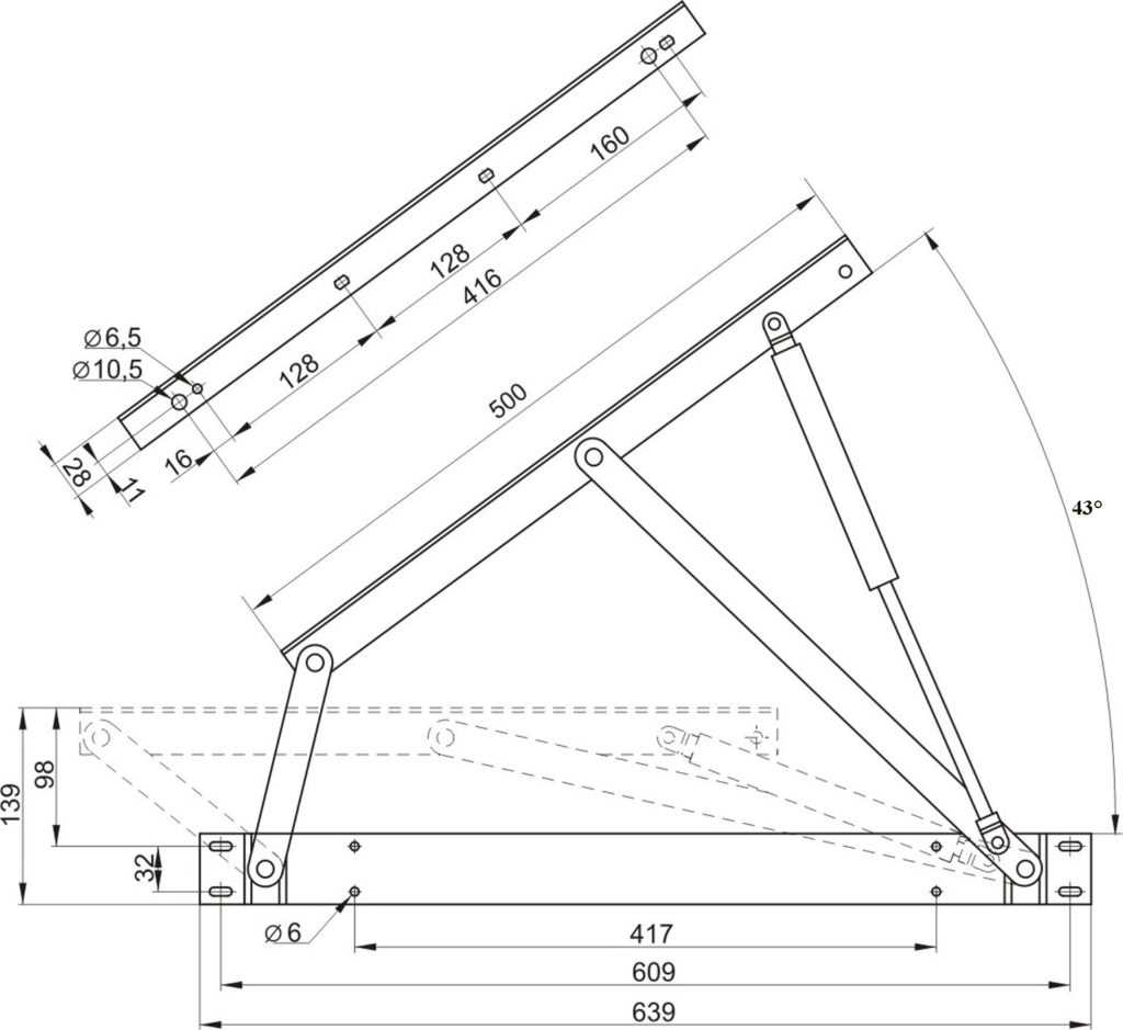
Изготовление подъёмных механизмов
Не каждому под силу сделать самому подъёмные механизмы. Их можно приобрести в собранном виде в строительном супермаркете. Я решил изготовить подъёмники сам. Подъёмники делал по чертежу.
Для изготовления узлов механизмов потребовалось:
- уголок 32 × 32 мм длиной 700 мм – 2 шт.;
- стальная полоса 50 х 640 х 3 мм – 2 шт.;
- стяжки длиной 150 мм – 2 шт.;
- стяжки длиной 430 мм;
- шарнирные втулки – 8 шт.;
- газовые амортизаторы – 2 шт.

Единственным затруднением явилось формирование вертикальных прогибов в стальных полосах под шарнирное крепление нижних концов рычагов. Мне сделали их в слесарной мастерской, используя небольшой пресс.
Сборка кровати с подъёмным механизмом своими руками
Оставалась самая сложная операция – сборка каркаса кровати и механизма подъёма в единую конструкцию. Для окончательной сборки я попросил помочь двух своих друзей. Работа была выполнена согласно пунктам следующего списка.
Этапы сборки кровати
- В металлической раме вкладного каркаса просверлил монтажные отверстия.
- С внутренних сторон боковин корпуса кровати закрепил болтами подъёмники через сквозные отверстия.
- С помощью двух помощников, которые держали вкладной каркас, болтами прикрепил верхние части подъёмников к раме.
- С внешней стороны боковин головки болтов закрыл пластиковыми заглушками под цвет МДФ.
- Окончательно проверил надёжность и правильность крепежа всей подвижной конструкции кровати.
Советы по выбору подъемного механизма для кровати на газовых лифтах
Решив приобрести газовый амортизатор в качестве подъемного механизма, нужно ответственно подойти к выбору, ведь устройство стоит недешево, и будет обидно, если оно сломается через пару лет. При покупке нужно учитывать такие моменты.
Фирма-производитель
Лучшими считаются немецкие или немецко-российские модели. Неплохо себя зарекомендовали производители из Турции и Тайваня, а меньше всего положительных отзывов о китайской продукции.
После установки газового амортизатора на кровать фурнитуру частично видно, и рекомендуется подбирать цвет, близкий к цвету мебельного каркаса.
Нагрузка
Нагрузка зависит не только от веса каркаса, но и от того, вертикальное или горизонтальное откидывание происходит. Как правило, в инструкции указано, для какого открывания предназначен какой газовый механизм для кровати 180*200 см, и какой вес и размер он может равномерно выдерживать. Рекомендуется подбирать устройства в соответствии со всеми параметрами.
Вид действия газового лифта для кровати
Есть механизмы прямого действия, когда подъемник работает при сжатии выдвижного штока, а есть обратного, при котором происходит выдвижение штока. Чаще всего производителями предлагаются устройства для кроватей прямого действия. Но конструкции обратного действия не хуже. Выбор прямого или обратного хода фурнитуры определяется только личными предпочтениями установщика.
Если модель подобрана по всем параметрам, то после установки газового амортизатора на кровать она прослужит долго.
Установка подъемников
Еще одним вспомогательным источником станет дальнейшая инструкция. Она носит общий характер, но описывает наиболее распространенный и универсальный принцип монтажа подъемников.
Установка предусматривает выполнение таких действий:
- Сначала собирается непосредственно сам короб кровати. Ведь именно к нижнему корпусу и будет осуществляться крепление механизма;
- Собирается сам подъемник, если он не цельный, либо в комплекте идет по деталям;
- Устройство фиксируется на боковой панели. Вообще оптимально взять готовый механизм подъема уже в сборе. Собирать такие девайсы своими руками сложно, для этого нужен опыт и знания;
- Теперь само спальное место соединяется с подъемником. Возможно тут потребуется помощь, поскольку фиксация осуществляется в поднятом состоянии основания.
На этом установка считается завершенной. Обязательно проверьте работоспособность подъемного устройства, выполните несколько процедур подъема и опускания, убедитесь, что газлифт надежно фиксируется в поднятом состоянии.
Главный аспект, обеспечивающий правильную установку и дальнейшую эксплуатацию любого типа подъемного механизма для кровати, заключается в правильном расчете грузоподъемности и в выборе необходимого места для крепления.
Поскольку каждая кровать имеет индивидуальные характеристики, общих для всех рекомендаций не существует. Зато существует большой ассортимент подъемников, которые учитывают не только финансовые возможности покупателя, но и конкретные требования, эксплуатационные параметры и предполагаемую нагрузку.
Механизмы подъема и трансформации применяются повсеместно. Взять хотя бы раскладные кресла-кровати или же преимущественно детскую кровать-чердак , где также простыми движениями образуются полноценные спальные места, раскрываются дополнительные возможности мебели.
Кровати с подъемниками откровенное удобные и функциональные. Это те же стандартные кровати, но с расширенными возможностями. Альтернативой им могут служить модели с выдвижными ящиками.
Всем спасибо за внимание!
Подписывайтесь, оставляйте комментарии и задавайте актуальные вопросы!
Источник
Механизм подъема, опускания и регулирования дозатора.
Механизм подъема, опускания и регулирования дозатора (рисунок 2) служит для подъема и закрепления дозатора в транспортном положении, а также для установки и фиксирования в заданном рабочем положении – при дозировке балласта. Таких механизмов два. Каждый из них предназначен для управления левой и правой сторонами дозатора. Для опускания последнего вначале устанавливают гайку стопора-фиксатора 5, вращая маховичком 4 ее винт до заданной отметки по шкале 3.Отметки шкалы соответствуют высоте низа дозатора по отношению к уровню головок рельсов. Вместе с гайкой стопора-фиксатора могут опускаться опирающийся на неё конец рычаг 8, который другим концом соединен с рамой тягой 7, и подвеса 13, паз которой перемещается по пальцу приводного рычага 12, под действием сжатого воздуха шток цилиндра в, воздействую на рычаг 12, поворачивается вал/ и рычаги 9, к которым на подвесках 2 присоединен дозатор 10 с боковой рамой. Дозатор опускается до тех пор, пока пален рычага 12 упрется в нижнюю часть паза подвески 13. В этом положении нижняя кромка дозатора будет находиться над уровнем головок рельсов на отметке шкалы 3.
1, 12, 13, 16 – рычаги; 2 — серьга; 3 – винтовой механизм;
4 — коромысло; 5 – боковая рама; 6, 11 — валы; 7 — пневмоцилиндр;
8, 10 – тунельные балки; 9 – центральная рама; 14 — ролик; 15, 17 — тяги
Рисунок 2
– Механизм подъема, опускания и регулирования дозатора
3.2 Механизм раскрытия внутренних крышек
В транспортном положении крышки 3,6, установленные на валах 4 и 5 через опоры вращения, закрывают проемы внутренних люков, расположенных между хребтовой балкой и двумя средними балками 1,7, предотвращая высыпание материала на путь. Крышки от открывания удерживаются уступами, установленными на центральной раме и механизмом открывания. Последний включает два шарнирно-рычажных механизма открывания, расположенных со стороны торцевых стенок бункера. Между собой механизмы связанны валом 5, установленным в опорах вдоль хребтовой балки, что позволяет обеспечить их синхронную работу и равномерное восприятие нагрузок от давления балластного материала на крышки.
1, 7 – средние балки; 2 — распорка; 3, 6 — крышки; 4 – ось крышки;
5 – валы привода крышек; 8 – регулирующая распорка; 9, 11 — рычаги;
10 — тяга; 12 — пневмоцилиндр
Рисунок 3
– Механизм привода внутренних крышек
3.3 Механизм привода наружных крышек
Механизм открывания наружных крышек 1,5 ( Рисунок 4) приводится от пневмоцилиндра 2 так же через два синхронно работающих шарнирно-рычажных механизма, связанных между собой через вал 4, проходящий вдоль хребтовой балки. В транспортном положении крышки удерживаются от раскрытия уступами центральной рамы, выступающими через средние балки 6, 14, и шарнирно-рычажными механизмами. Механизм включает рычаги 8, 17, поворачивающие валы 7, 3, регулирующие распорки 9, 16, двухплечие рычаги 10, 13, распорки 11, 12, регулирующую вертикальную тягу 18, рычаги 19, 15, закрепленные на валу 4.
В транспортном положении крышки запираются аналогично описанному для предыдущего механизма: ось В крепления рычага 10 располагается выше на 6–10 мм линии шарниров АС, что гарантирует передачу усилия раскрытия крышки 5 на шток цилиндра 2, приводящую к упиранию поршня в дно корпуса. Аналогично устроена часть механизма с противоположной стороны. Для раскрытия крышек после опускания центральной рамы шток пневмоцилиндра поднимается, производя перемещение элементов в направлениях, показанных стрелками ( рисунок 4). В открытом положении крышки 1,5 упираются в боковые рамы, предотвращая пересыпание балластного материала через боковые рамы.
1, 5 – крышки; 2 — пневмоцилиндр; 3, 4, 7 – валы привода крышек;
6, 14 – средние балки; 8, 15, 17, 19 – рычаги; 9, 16 – регулирующие распорки;
10, 13 – двухплечие рычаги; 11, 12 — распорки; 18 – регулирующая тяга
Рисунок 4
– Механизм привода наружных крышек
Список используемых источников
1. СТО СГУПС 1.01СДМ.01-2012. Система управления качеством. Курсовой и дипломный проекты. Требования к оформлению
2. Путевые машины. Учебник/ М.В.Попович, В.М.Бугаенко, Б.Г.Волковойнов и др.; Под ред. М.В.Поповича, В.М.Бугаенко. М.,2009. 820с.
3. Путевые машины: Учебник для вузов ж.-д. транспорта транс/ С.А.Соломонов, М.В.Попович, В.М.Бугаенко и др. Под ред. С.А.Соломонова. – М.: Желдориздат 2000 – 756 с.
Инструкция по установке и регулировке газлифта для кровати
От правильности установки газлифта зависит срок его службы.
Установку подъемного механизма для кровати с использованием газовых лифтов следует четко выполнять согласно инструкции производителя.
Работать системы могут при температуре от -30 до +80 градусов. Но эта характеристика влияет на мощность устройства.
Для того, чтобы собрать кровать с газлифтом необходимо выполнить несколько следующих основных шагов:
Собрать каркас кровати согласно инструкции производителя;
Установить газлифты. Фиксация конструкции происходит с помощью шпилек или специальных саморезов (обычно прилагается в комплекте). Механизм крепится за проушины газлифта к каркасу кровати
Некоторые конструкции имеют специфическую конструкцию и являются односторонними
В этом случае важно их установить с правильной стороны (обратите внимание на конфигурацию цилиндров);
Собрать откидную ортопедическую решетку кровати. Каркас решетки может иметь различную конфигурацию
Обычно он имеет цельнометаллическую конструкцию
Иногда его изготовляют из ламелей древесины или другого материала (следовать инструкции производителя);
Закрепить газлифт к верхнему откидному элементу кровати. К нижней части кровати устройство крепится в открытом состоянии откидной части. Установку механизмов на кровать лучше производить вдвоем. Один должен держать верхнюю откидную решетку, а другой производить монтаж приспособлений. Важно установить штоком вниз (цилиндр сверху). Установка газлифта штоком вверх является наиболее распространенной ошибкой и может привести к поломке конструкции. Если шток устанавливается вверх, то крепежная шпилька и монтажные проушины работают на излом. При креплении важно гайки зафиксировать без перетяжки. В ином случае механизм не будет двигаться свободно, можно сорвать резьбу. Приспособления со штоком вверху являются большой редкостью и это обязательно должно быть отражено в паспорте производителя;
Запустить систему несколько раз для проверки работоспособности после сборки всей конструкции.
Работа газлифта не должна включать его движение к верхней мертвой точке. Это может быстро вывести систему из строя.
Если система работает некачественно, следует заново установить приспособления.
При обнаружении неточных движений, важно сразу устранить неполадки. Потребуется произвести регулировку или переустановку механизма заново
В противном случае они быстро выйдут из строя при использовании. Для настройки приспособлений можно отрегулировать углы наклона. Цилиндр газлифта на внутренней поверхности имеет резьбу. Поворачивая механизм, можно его немного удлинить или укоротить. Также можно на основании кровати сделать разметку для установки механизма в другом месте.

Этапы изготовления
После того как подготовка необходимых материалов и инструментов будет завершена, можно приступать к сборке самодельной кровати. Этот процесс можно разделить на несколько этапов. Рассмотрим подробно каждый из них.
Основной каркас
Подъемная кровать своими руками требует предварительного изготовления всех частей основного каркаса. В их перечень входят:
- боковые царги, задняя часть, изголовье, дно для ящиков при использовании ДСП (МДФ);
- рама для основания из деревянных брусков;
- специальный настил под матрас, который можно подготовить из деревянных досок, реек.
Все перечисленные детали необходимо подготавливать, в этом помогут предварительно разработанные схемы, чертежи. Сборка подготовленных деталей выполняется в следующей последовательности:
- к раме, выполненной из брусков, крепится дно для ящиков;
- на этой же раме прочно закрепляются боковые царги и задняя часть, на которые сразу же можно установить настил под матрас;
- после этого закрепляется изголовье.
Для того чтобы на ложе, сделанном самому себе, было комфортно и безопасно, стоит использовать саморезы и специальные уголки.




Подъемный каркас
Подъемный механизм является важным элементом кровати-трансформера. Именно благодаря ему осуществляется доступ к полой внутренней части конструкции, выполняющей роль хранилища. Чтобы создать подъемный механизм для кровати своими руками, в качестве основания берутся планки из стали. Они собираются в своеобразную подвижную конструкцию и оборудованы амортизаторами пневматического типа
Конечно же, в специализированных магазинах можно приобрести подъемник в готовом виде, рассчитанным на определенный вес, но все-таки опытные мастера предпочитают конструировать такое важное изделие самостоятельно
Итак, для создания подъемника потребуются следующие элементы:
- верхняя планка, которая для закрепления в нужном положении должна быть укреплена дополнительно планкой, выполненной из уголкового стального проката;
- основание подъемника, состоящее из двух стальных планок;
- регуляторы высоты подъема кроватной решетки, состоящие также из двух стальных планок;
- нижняя планка с функцией опоры, которая к тому же упрощает работу шарнирных опор.
Все используемые для подъемника элементы должны пройти проверку на прочность, поскольку нагрузка при подъеме решетки кровати под потолок распределяется по всем деталям конструкции.


Крепление подъемного механизма
Установка подъемного механизма на кровать своими руками состоит из следующих этапов:
- верхнюю планку подъемника необходимо прикрепить к кроватной решетке с помощью планки из уголкового стального проката;
- прикрепить к верхней планке два основания подъемника, которые отвечают за контроль высоты подъема кроватной решетки вместе с матрасом;
- закрепить нижнюю планку на основном коробе;
- проверить прочность всех креплений подъемной конструкции.




Обшивка изделия
Итак, как сделать кровать собственноручно, стало понятным. Теперь необходимо разобраться, как обшить готовое изделие. Для этого могут быть использованы следующие материалы:
- кожа (кожзаменитель);
- ткань (бархат, велюр и другие).
Весь процесс обшивки состоит из следующих шагов:
- приклеить поролон специальным клеем к выбранным поверхностям. Края завернуть во внутреннюю часть кровати, обрезать лишнее и закрепить степлером;
- для крепления ткани или кожи нельзя использовать клей. Материал аккуратно руками разглаживается по поверхности и снизу подбивается. Для красивого скрепления материала на видимых частях конструкции его необходимо подвернуть;
- для крепления материала на угловых частях конструкции потребуется использование уголков из металла.
Обшивка изделия может выполняться как после полной сборки кровати, так и на отдельных элементах будущей конструкции. На этом работа по изготовлению кровати с подъемным механизмом своими руками завершена. Можно приступать к эксплуатации готового изделия.
Из чего состоит откидная кровать-чертежи
Давайте вместе рассмотрим, из чего будет состоять откидная кровать, чертежи для которой представлены в данной статье. Пожалуй, самым важным элементом можно назвать матрас.
К счастью, такая кровать способна «принять» почти все известные разновидности матрасов, но лучше, конечно, подобрать себе ортопедическую модель.
Также в кровати будут специальные механизмы, предназначенные для поднятия или опускания конструкции. От их качества напрямую будет зависеть то, с какими усилиями вы будете складывать кровать в нишу. Если оно высокое, то модель практически сама занимает исходное положение.
На сегодняшний день существует три разновидности механизмов:
- Механические.
- На пружинах.
- На газовых амортизаторах.
Советы по выбору
Поиск подходящей кровати с подъемным механизмом — несложная задача. Однако для приобретения качественной долговечной мебели потребуется учесть некоторые нюансы. При выборе важны следующие критерии:
- Размеры. Односпальные модели изготавливают в виде компактной тахты, предназначенной для установки в углу. Изделия оснащают пружинными либо газовыми подъемниками, они отлично подходят для детей, подростков. В мебели с параметрами 140 × 200 см механизм располагается по всей длине, позволяя с комфортом отдыхать одному взрослому человеку. Большие двуспальные конструкции с параметрами 180 × 200 см рассчитаны на двоих людей. Несмотря на внушительные габариты, они помогают экономить свободное пространство в дневное время.
- Режим эксплуатации. Учитывают регулярность поднятия спального места — ежедневно либо эпизодически.
- Физические возможности пользователя. Односпальные модели с газовыми и пружинными системами актуальны для малышей, 140 × 200 см подойдут подросткам, трансформация двуспальных кроватей будет под силу взрослым людям.
- Стоимость. Приобретение дорогих подъемных механизмов для кровати целесообразно только при регулярном использовании спального места. Если изделие поднимают редко, подойдут доступные ручные устройства.
- Надежность. Самыми долговечными являются механизмы на петлях, что связано с их простотой. В них практически ничего не может сломаться, поэтому ремонт и замена деталей не потребуются. Элементы, выполненные из качественных материалов, способны служить на протяжении нескольких десятков лет.
- Безопасность. Специалисты рекомендуют отдавать предпочтение механизмам, оснащенным блокираторами, которые защищают от самопроизвольного опускания спального места. Данный критерий особенно важен, если мебелью будет пользоваться ребенок.
В просторных спальнях идеально выглядят большие кровати на газовых амортизаторах. Оригинальным дополнением интерьера станут модели с нестандартной конфигурацией: круглой, овальной, с крупным мягким изголовьем. Для маленьких комнат подойдут шкафы-кровати либо модели с горизонтальным подъемом. В детской не нужна габаритная мебель, оптимальным решением станет односпальная конструкция.
Преимущества ортопедических оснований для кровати, критерии выбора
При регулярном использовании подъемного механизма лучше отдать предпочтение дорогостоящей качественной фурнитуре
Физически слабым людям рекомендуется остановиться на модели с газовыми амортизаторами
Самыми долговечными являются механизмы на петлях
Более безопасными считаются механизмы с блокираторами
Назначение
Использование подъёмного механизма для кровати позволяет освободить часть площади помещения. Достигается это несколькими способами:
- сама кровать переводится в вертикальное положение и убирается в нишу в стене;
- поднимается только спальное место, чтобы сформировать полезный объём с быстрым доступом к месту хранения самых разнообразных вещей.
Что касается первого варианта, то он является оптимальным решением для однокомнатных квартир и квартир-студий. Одной из его разновидностей является трансформация кровати в другой предмет мебели. Как правило, это диван. Такая трансформация весьма полезна с эргономической точки зрения. Приобретая один предмет мебели, вы получаете сразу два, выполняющих различные функции. Однако, как показывает практика, по уровню комфорта диван-кровать сильно уступает полноценным матрасам, которые используются в классических кроватях.
Открывая ортопедическое основание под большим углом, можно получить свободный доступ в самые дальние уголки короба
Второй вариант целесообразно использовать в двухкомнатных квартирах. В этом случае, меньшее по площади помещение отводится под спальню, даже если там нет места для установки шкафа и других предметов меблировки. Полезную площадь для хранения различных вещей и постельного белья предоставит короб под поднимающимся матрасом.
Полезное пространство внутри кровати целесообразно разделить на несколько отсеков. Если это не было сделано во время производства, рекомендуется использовать специальные ящики
Эксплуатация кровати с подъёмным устройством даёт дополнительные преимущества:
- надёжное и бережное хранение вещей. Так как крышка короба находится под значительным давлением от веса матраса, она плотно прилегает и не пропускает внутрь пыль;
- облегчение уборки. Кровать прилегает к полу всей площадью основания, под неё не проникает грязь;
- простота использования. Современные подъёмные механизмы оборудованы различными устройствами, которые позволяют легко поднять верхнюю крышку, несмотря на значительный вес конструкции и матраса.
Боковой подъёмный механизм для детского шкафа-кровати
Статья по теме:
Кровати с механизмом подъема: преимущества и недостатки
Большинство преимуществ кроватей с поднимаемым верхом можно отнести к любому типу исполнения механизма открытия. Поэтому имеет смысл выделить положительные моменты, общие для всех конструкций:
- Компактность. Постельное белье, одеяла, подушки и одежда хранятся под кроватью, освобождая пространство в другом месте.
- Низкий уровень шума.
- Простота эксплуатации.
- Надежность. Особенно в решениях, где применяется газлифт.
- Широкий ассортимент каркасов кроватей. Выбрать кровать с механизмом подъема можно на любой вкус и кошелек.
- Простота обслуживания.
Кровати с подъемным механизмом имеют много преимуществ.
Недостатки также имеются, причем характерные для всех вариантов:
- Малый зазор между днищем и поверхностью пола. При накоплении пыли под кроватью, убрать ее оттуда – довольно трудоемкая задача без перестановки.
- Отсутствие мобильности. Благодаря своим габаритам, такая мебель ставится надолго в одном месте.
- Провисание. Дешевые основания со временем начинают ослабевать, что сказывается на использовании конструкции в целом.
У конструкции имеются и свои недостатки.
При этом каждый вариант подъемного механизма имеет собственные плюсы и минусы.
Ручной
К достоинствам стоит отнести простоту конструкции, надежность и неприхотливость в обслуживании. Что касается недостатков, то он здесь один, но существенный – прилагаемое усилие, требуемое для подъема основания.
Ручной механизм наиболее простой и надежный.
Пружинный
Преимуществом подобного решения является наличие компенсирующего эффекта, позволяющего снимать часть нагрузки (мышечной силы) во время работы механизма. Отрицательной стороной будет необходимость периодической замены пружин (со временем они теряют первоначальную жесткость, растягиваются), а также сложность установки, регулировка силы сжатия и повышенный уровень шума.
Пружины потребуется периодически менять.
Газовый механизм подъема кровати
Плюсом газовых амортизаторов является плавность хода во время работы, отсутствие шума, неприхотливость и долговечность. Из минусов стоит упомянуть небольшой ход, снижение эффективности при низких температурах, невозможность ремонта в домашних условиях.
У газлифта есть как плюсы, так и минусы.









































































