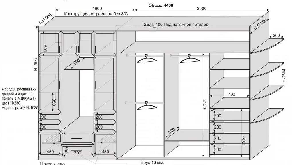
Размеры шкафа-купе (высота, ширина и глубина)
После утверждения дизайна помещения нужно определиться с размерами встроенной мебели. Высота модели ограничена потолком в квартире, а ширина – на ваше усмотрение.
Эти изделия, как никакие другие, требуют индивидуального подхода.
Шкаф купе размеры рассчитываются по следующей схеме:
- определите габаритные размеры будущего шкафа-купе;
- рассчитайте, сколько места «отбирают» плинтуса, батареи, подоконники, багеты на запланированном месте для встроенной мебели;
- рассчитав высоту и ширину купе, учитывайте, что около 100 мм от глубины уйдет на раздвижную систему.
Заказчик сам подбирает цвет и наполнение шкафа-купе, а также его конфигурацию, чтобы он идеально вписался в дизайн интерьера.
Максимальные
Встроенную мебель больших размеров заказывают для гардеробных, больших кабинетов, спален и гостиных. Недостаточно сделать шкаф по максимальным показателям высоты и длины комнаты.
Шкаф-купе пользуется огромным спросом благодаря практичности, функциональности и привлекательному внешнему виду.
Чтобы мебелью было удобно пользоваться без поломок и деформации деталей, размеры полок и отделений должны быть в гармоничном соотношении с ростом человека.
Сегодня многие отдают предпочтение авторскому дизайну, но, тем не менее, каждая модель должна соответствовать общепринятым стандартам.
- Чтобы было удобно дотягиваться рукой вглубь шкафа, глубина полок варьируется от 50 до 90 см.
- Если шкаф в высоту превышает 2,8 м, добавляйте антресоли.
- При максимальных размерах мебели двери удобнее делать двойными, чтобы не перегружать ролики раздвижной системы.
- Ширину купе, если показатель выше 2,8 м, разбивают на модульные комплексы.
Минимальные
Когда вы ограничены в пространстве, минимальные размеры встроенной мебели – оптимальное и комфортное решение.
Высота мебели обычно соответствует росту человека. Общепринятая высота шкафа имеет 2,1 м.
Полки и ящики распределяются так, чтобы помещалось максимальное количество вещей на минимальной площади.
Ширина полок может варьироваться от 40 сантиметров до 1 м. Шире их делать нельзя, поскольку под весом одежды они могут прогнуться.
- Минимальной шириной считается 1 м.
- При таких габаритах ширина двери соответствует 45 см.
- Оптимальная общая глубина полки будет 35 см. Учитывайте, что из этого параметра вычитается 10 см на раздвижную систему. То есть полезная площадь уменьшается до 25 см.
- Высота шкафа определяется размерами комнаты. Если потолки высокие, добавляются антресоли.
Штанга под плечики обычно имеет длину от 80 см до одного метра. Если её сделать длиннее, то она прогнётся при эксплуатации.
Стандартные
Как не бывает стандартных комнат, так и нет усредненных размеров шкафа-купе. Но есть рекомендуемые готовые нормативы, которых советуют придерживаться для создания базовой мебели.
Чтобы функционально использовать площадь комнаты, следует заказать шкаф-купе в индивидуальном порядке по особым размерам.
- При высоте конструкции 2,5 м оптимальной считается ширина шкафа 3 м.
- Глубина полок варьируется от 45 до 50 см. Этого хватает, чтобы взрослый человек достал вещь из любой зоны углубления.
- Ширина полок не должна превышать 1 м, чтобы она не прогибалась под тяжестью вещей.
Из чего состоят двери для шкафа купе
Раздвижная система обычно состоит из таких комплектующих:
- дверная рама (боковые стойки + горизонтальные планки);
- наполнение – дверное полотно;
- нижние и верхние ролики;
- буферная лента;
- направляющие дорожки.

Для последующего понимания терминов и всего процесса сборки, в таблице вы найдете подробное описание каждого компонента.
|
Дверная рама |
|
| Боковые стойки
|
Дюралевые стойки имеют продольные пазы, в которые вставляют полотно. С наружной стороны профиль сделан в виде загиба, который выполняет функцию ручки. Сечение стоек может быть разным, но все они скрывают продольный паз загибом. Некоторые боковые планки делают сплошными, а к ним посередине крепят отдельные ручки в виде фигурных пластин. |
| Поперечные планки
|
Поперечины соединяют вертикальные стойки в единую конструкцию – раму. Внутрь нижней поперечины устанавливают пару вертикальных роликов. Сечение горизонтальной планки и высота бортов рельсовой дорожки полностью скрывают ролики. |
![]() |
Если наполнение состоит из нескольких фрагментов, то в раму вставляют средние планки. Они имеют двухсторонние пазы, в которые входят сверху и снизу листы полотен. Узнайте более полную информацию о профилях для шкафа купе. Достойна внимания продукция австрийской фирмы «Штерн». |
| Буферная лента
|
Ворсистая полоса на самоклеящейся основе (именуемая также шлегелем) предназначена для выполнения двух функций. Мягкая структура ленты гасит звук от примыкания двери к боковой стенке корпуса шкафа. Ворс отсекает проникновение пыли внутрь шифоньера. На стойках с внешней стороны рамы для буферной ленты сделаны вертикальные пазы. |
| Можно собрать дверное обрамление по принципу оконной рамы из деревянного бруса. В нем, как и в металлической раме, делают фрезером продольные пазы по внутреннему периметру рамы. Ширина щели должна равняться толщине полотна наполнения. | |
| Направляющие дорожки
|
Имеют разное сечение. В разрезе обе планки напоминают литеру «Ш». Нижняя дорожка сделана с невысокими продольными пазами. Этого достаточно, чтобы удержать колёсики от поперечного смещения. Верхний профиль имеет высокие борта (40 мм) так, как нужно удерживать верхние роликовые устройства, а вместе с ними и всю дверь от опрокидывания. Более подробно узнать о направляющих для шкафов купе можно здесь |
|
Наполнение дверного полотна |
|
| Зеркало
|
Зеркальные двери шкафа купе создают красивый фасад мебели, визуально расширяют пространство и улучшают освещение помещения. Можете использовать бесцветные и тонированные зеркала под серебро, бронзу, матовое и разных цветов. На их тыльную сторону наклеивают плёнку, которая удерживает осколки в случае разрушения наполнения двери.
Для украшения зеркал применяют три технологии декорирования:
|
| МДФ и ЛДСП
|
Из МДФ можете сделать полное наполнение раздвижных систем. Для дверей купе применяйте плиты толщиной от 6 до 10 мм. На их поверхности по заказу вам сделают лазерной установкой красивые узоры. Материал также обклеивают цветной ПВХ плёнкой с рисунками.
Ламинированные листы ДСП стоят дешевле, чем плиты МДФ. На рынке стройматериалов вы сможете найти ЛДСП с матовыми и глянцевыми фасадами, имитирующие кожу и ценные породы дерева. |
| Ламинат
|
Ламинированные паркетные ламели полноценно могут заменить дорогой материал для наполнения откатных дверей. Бывают доски светлых и тёмных тонов, имитирующих ценные породы дерева. Паркет толщиной 10 мм точно вписывается в алюминиевое обрамление дверей. |
| Фанера
|
Для бюджетной сборки фасада используйте ламинированную фанеру. Материал легко пилится и режется ножовкой и электролобзиком. Наполнение делают, как однородным, так и комбинированным. Вы можете вставить фрагменты правильной геометрической формы или сделать фигурные комбинации деталей из МДФ или ЛДСП с зеркалом. Алюминиевые профили имеют пазы шириной 10 мм. Если материал наполнения толщиной менее этого размера, то потребуется установка уплотнителя. |
|
Нижние и верхние ролики |
|
| Нижние ролики
|
Крепят саморезами с двух сторон внутри профиля горизонтальной рейки дверной рамы. Колёсики изготовлены из полимера, который обеспечивает бесшумность хода двери. Подвижные узлы сделаны таким образом, что при установке двери они на пружинах поджимаются внутрь нижней планки. Это позволяет вставить верхнюю часть рамы в направляющую рейку. |
| Верхние ролики
|
Устанавливают на стойках рамы с обеих сторон двери. В отличие от нижних колёсики вращаются в горизонтальной плоскости и полностью скрыты высоким профилем поперечины. |
Преимущества и недостатки
Мебель стандартного размера в узком или маленьком помещении забирает часть пространства, делая его еще меньше. Альтернативой мебельным стенкам считаются шкафы купе или пеналы в белой палитре. Узкие шкафы являются популярным предметом мебели благодаря своим достоинствам:
- многофункциональность, индивидуальное расположение полок и штанги позволяет хранить не только одежду, но и другие предметы;
- долговечность, надежность, благодаря небольшим размерам узкие полки не оказывают чрезмерного давления на несущую конструкцию, что сохраняет функциональность длительный период;
- удобство, эргономичность, многообразие размеров и форм позволяет разместить мебель в любом месте;
- совместимость с другими предметами корпусной мебели;
- низкая цена;
- экономия пространства, аккуратный внешний вид помещения;
- стильный дизайн, использование разных материалов и цвета делают мебель современной.
Наряду с достоинствами, имеются недостатки такого шкафа, хотя их совсем немного:
- неустойчивы в полупустом состоянии, при расположении тяжелых предметов на верхних полках;
- не подходят для хранения крупного багажа;
- плохо смотрятся в интерьере большой комнаты, если не составляют комплект с другой корпусной мебелью.
Наполнение
При выборе шкафа непременно учитывается, какие отсеки и иные элементы имеются в нем. Оптимальными считаются конструкции, оснащенные:
- большими отсеками, используемыми для хранения дорожных сумок, постельного белья, пледов или иных крупных предметов;
- значительным по размеру отделением, используемым для развешивания одежды на плечиках;
- полками, на которых укладываются разные небольшие вещи;
- антресолями, находящимися на самом верху мебели, причем оптимально на них располагать вещи, не использующиеся часто;
- небольшими элементами хранения, в которые прекрасно вмещаются зонты или другие вещи нестандартных размеров и форм;
- ящиком, располагающимся внизу предмета, здесь обычно хранится несезонная обувь.

Советы профессионалов
Для хранения верхней одежды, обуви, сумок, спортивного инвентаря, редко используемых предметов целесообразно установить шкаф-купе в прихожую. Модели глубиной менее 45 см не загораживают проход в узком коридоре, а открытая раздвижная дверь не станет препятствием в отличие от распашной.
Шкаф-купе в спальню должен быть оборудован дополнительными аксессуарами: выдвижными вешалками для брюк, ремней и галстуков, лотком для украшений, ящичками небольшого размера для хранения нижнего белья. Гардероб должен вмещать большую часть одежды. Для маленьких комнат подойдут изделия шириной 150 см с узкими дверями. Шкаф-купе в гостиную может иметь открытые или боковые полки для хранения книг, сувениров, посуды.
Производители, среди которых фирмы Stanley, Mr.Doors, Komandor, изготавливают узкую мебель для хранения вещей по индивидуальному заказу. Онлайн-конструктор позволяет реализовать собственные идеи по дизайну, наполнению, оформлению шкафа. Некоторые фирмы, например, «Икеа», имеют в каталогах готовой продукции шкафы-купе, глубина которых 40 см, 35 см, 30 см.
| Фирма | Модель | Ширина | Высота | Глубина |
| Ikea
|
«Пакс» | 150 | 201 | 44 |
| «Аули» | ||||
| «Сэккен» | ||||
| «Вереск» | «Нью-Йорк 23» | 240 | 250 | 40 |
| «Хилтон» | 200 | 220 | ||
| Ariani | «Ди Сопра» | 271 | 240 | 40 |
| Flashnika | «Ника 17» | 260 | 240 | 45 |
| «Эконом 16» | 100 | 35 |
Материалы изготовления
Прямой шкаф или радиусный создаются из разных материалов. Наиболее часто для этих целей используется:
натуральная древесина, гарантирующая получение необыкновенно изысканных и привлекательных конструкций, имеющих высокую цену;
разнообразные пиломатериалы дают возможность создать недорогие и красивые шкафы, но нередко в их составе имеются формальдегиды, а также они должны защищаться от влаги, а иначе не смогут прослужить долгое время;
пластик обеспечивает формирование доступных по стоимости конструкций, причем можно получить белый, красный или какой-либо другой предмет интерьера, но важно оградить его от разных механических воздействий, чтобы предотвратить образование царапин, устранить которые с пластиковой поверхности невозможно;
металл дает возможность сделать прочный и стойкий предмет интерьера, на полках которого можно расположить многочисленные крупногабаритные и тяжелые элементы, но он считается не слишком красивым и подходящим для жилых помещений, а также опасен для детей.
Отдельно учитывается, из какого материала изготавливаются двери. Для создания дверей может использоваться тот же материал, который применялся при формировании боковин, дна и других частей шкафа, а также могут применяться иные материалы. Нередко создается купе с зеркалом, которое прикрепляется к дверке, поэтому обладает идентичными ей размерами. Если оснащается конструкция распашными створками, то они делаются наиболее крепкими и надежными. Нередко для этого используется закаленное стекло, обеспечивающее действительно красивый вид всего предмета интерьера. Для распашной конструкции может применяться для украшения дверок роспись, пленки и рисунки, наносимые разными способами.


ДСП
Что внутри
Схема расположения полок для одежды и обуви, ящиков, штанги для вешалок и других наполнителей (гардеробный лифт, корзины) зависит от размеров шкафа. Однако общепринятым является условное разделение внутреннего пространства на три зоны:
- нижняя — для обуви;
- средняя — оборудована штангами и полками для размещения одежды;
- верхняя — антресоли для хранения головных уборов, крупногабаритных и нечасто используемых предметов.
Длину полок и штанги нужно рассчитать так, чтобы они не прогибались под весом одежды. Оптимальные размеры: 45-60 см и 80-95 см соответственно. Высота полочек может варьироваться в пределах 35-55 см, но антресоль должна быть больших размеров — от 50 до 70 см.
Внутреннюю подсветку лучше разместить на выдвигающемся козырьке — будет включаться автоматически при открывании дверей. Фурнитура выдвижных ящиков не должна выступать, но лучший вариант — прорезные ручки. Модульное наполнение позволяет компактно и аккуратно разложить вещи.
Это интересно: Как выбрать детский табурет?
Форма
В мебельных магазинах представлен огромный выбор разных форм узкого шкафа – купе. Самыми актуальными считаются:
Прямоугольная. Такая форма конструкции представляет собой длинное сооружение, которое располагают вдоль стены.
Г-образная. Подобное изделие состоит из двух половин, которые соединяются между собой в торцовой части.
Треугольная. Данная модель предназначена для малогабаритного помещения. Большая часть шкафа располагается в угловой части.
Радиусная. Фасадная часть модели представлена в виде плавного изгиба во внутреннюю часть изделия.
Большая часть элементов располагаются в угловой части. На фото узкого шкафа изображена данная модель.
Разновидности
Существует много разновидностей мебели, в частности, шкафов для одежды. Разделение на виды происходит по типу, размеру изделий, материалу изготовления и количеству дверок, дизайну. Выбирать необходимо исходя из имеющейся площади и с учетом личных предпочтений.
Классический платяной
Для шкафа в классическом стиле неприемлемы новшества — эта мебель консервативна, без современного декора. Изготавливается из дерева, его имитации (к примеру, из МДФ). Общие характеристики:
- Есть несколько секций для одежды.
- Фасад обрамлен декоративной рамкой.
- Цветовая гамма от светлой до коричневой.
- Текстура натурального дерева.
- Шкаф может быть с зеркалом либо без него.
Существует 3 варианта классического шкафа. Несессер отличается небольшими размерами, хорошо вписывается в маленькие спальни. Внутреннее наполнение: полки (как правило, их 5), ящики, отделение под вешалки. Вверху может быть антресоль под мелкие аксессуары. Подходит для размещения только необходимых вещей (повседневной, выходной одежды, нижнего белья, постельных принадлежностей). Может быть установлен в ниши комнаты, обычно имеет 2 створки.
Комбинированный вариант имеет 3–5 створок. Внутреннее наполнение следующее: штанга для вешалок, антресоль, может быть с ящиками. Подходит для хранения одежды, обуви. Фасад обычно украшен большим зеркалом.
Более современные варианты — шкафы с торцевой штангой для вешалок. Устройство выдвижное, что экономит пространство, увеличивает вместимость изделия. Глубина шкафа больше, чем у предыдущих моделей, но ширина меньше. Изделие узкое, подходит для маленьких комнат.




Модульный
Большие модульные системы подходят для создания отдельной гардеробной комнаты. Обладают неоспоримым достоинством — они очень вместительны. Могут быть установлены возле каждой стены помещения. Шкафы собираются из отдельных модулей, которые легко комбинировать между собой. В комплекте бывают мебельные острова с выдвижными ящиками и зеркалами.
Модульные шкафы редко снабжены стандартными полками. Вместо них установлены сетки из металла. Также внутри систем размещаются корзины, подставки под обувь и головные уборы, штанги.



Встраиваемый
В гардеробные комнаты хорошо вписываются встроенные шкафы. С их помощью можно рационально распланировать систему хранения. Такие модели всегда устанавливаются возле стен — они служат стенками самого изделия. Собирать подобную мебель можно доверить только профессионалам, так как любой недочет обернется серьезной проблемой.
Варианты размещения встраиваемых моделей:
- В углу помещения (потолок и стены служат в качестве стенок шкафа).
- В нише (единственные элементы мебели — внутреннее наполнение и дверцы).
Наполнение: блоки под обувь, штанги, полки, подставки под головные уборы, антресоли, корзины, ящики. Определить, что именно будет внутри шкафа, может сам заказчик, это актуально при индивидуальном изготовлении мебели. Но и в готовых вариантах существует большой выбор наполнения под любые потребности.

Корпусный
Корпусные шкафы могут быть размещены в просторной комнате, где имеется свободное место. Могут быть с полками, штангами, ящиками. Некоторые модели оснащены распашными дверцами, другие — раздвижными, более современными, занимающими минимум полезной площади. Они удобны, так как могут быть переставлены в любое место в квартире. Такие шкафы традиционно пользуются популярностью, хотя многие дизайнеры считают, что гораздо удобнее использовать встраиваемые системы.

Особенности и назначение
Узкие высокие шкафы предназначаются для хранения многочисленных вещей. В таком элементе мебели допускается хранить посуду, сувениры, одежду или книги, причем выбор зависит от наполнения и вида дверок изделия.
Если грамотно выбрать конструкцию, то ее можно использовать даже для хранения одежды, развешанной на плечиках, так как для этих целей выделяется небольшой отдел. На рынке представлено множество моделей, которые могут оснащаться зеркальными дверцами или на глухие створки которых наносится уникальный рисунок или узор.
Изделия могут быть встроенными или стандартными, причем в первом случае допускается установить их в небольшой нише. Обычно для таких ситуаций изготавливаются шкафы на заказ, чтобы они прекрасно вписывались в выделенное для них пространство.















































































